
Shipping calculator
Calculate the Delivery Cost and Time
Enter your details to get delivery information.
| Door frame | Regular | European adjustable | Arch | Pocket door |
|---|---|---|---|---|
| The installation | Any skill level | High skill level | Medium skill level | Medium skill level |
| The aesthetics | Not always aesthetic | Aesthetic | Aesthetic | Aesthetic |
| The ability to correct vertical deviations of walls | ❌, not possible | ✅, possible | ✅, possible | ✅, possible |
| Non-standard wall thickness | ❌, not applicable | ✅, applicable in all situations | ✅, applicable in all situations | Possible |
| The visibility of nails and screws | Visible | Hidden installation | Hidden installation | Partially visible |
| The set | Frame, stopper, hinges | Frame, stopper, hinges, moldings | Frame, moldings | Moldings, decorative elements, finishing strips |
| Special hinges | ✅ | ✅ | ❌ | ❌ |
| Joining moldings at 45° or 90° | Not applicable | ✅ 45° and 90° | ✅ 45° and 90° | ✅ 45° and 90° |
| Compatibility with other types of moldings | ✅, possible | ❌, not possible | ❌, not possible | ❌, not possible |
| Need to paint | ❌, not required | ❌, not required | ❌, not required | ❌, not required |
| Pre-cut to size | ❌, not pre-cut | ❌, not pre-cut | ❌, not pre-cut | ❌, not pre-cut |
| Non-mortise hinges | ✅ | ✅ | ― | ― |
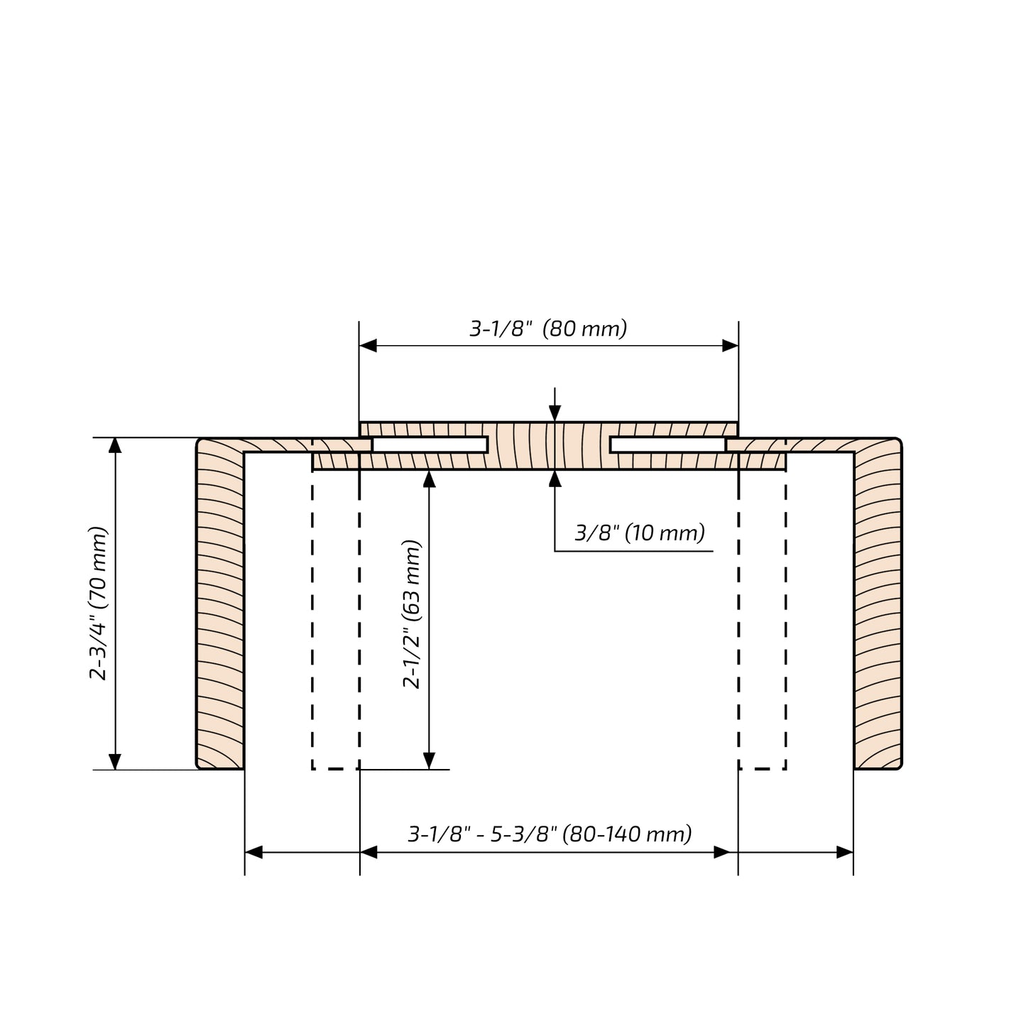
| Frame Thickness | 1/2" | 7/8" | 7/16" | ― |
| Opening Width | Door width + 1-3/4" | Door width + 2-1/2" | ― | ― |
| Opening Height | Door height + 1-1/2" | Door height + 2" | ― | ― |